51521606
pm@petermaarup.dk
Om klubben
Kontakt
Organisation
Vores klubhus
Klubbens historie
Kontigenter
Referater generalforsamling
Referater bestyrelsesmøder
Referater brugermøder
Vedtægter
Bliv medlem
Ringkøbing Havn
Ungdom
Velkommen
Pris
Ungdomstrænere
Kontakt / tilmelding
Sejlerskole
Velkommen
Handlingsplan- certificering
Pris
Instruktører
Tilmelding
Aftensejlads
Praktisk info
Aftensejladsbanen
Aftensejladsdatoer 2025
Tilmelding / kontakt
Bestemmelser for Aftensejlads
Nyheder
Arkiv
Galleri
Kontakt os
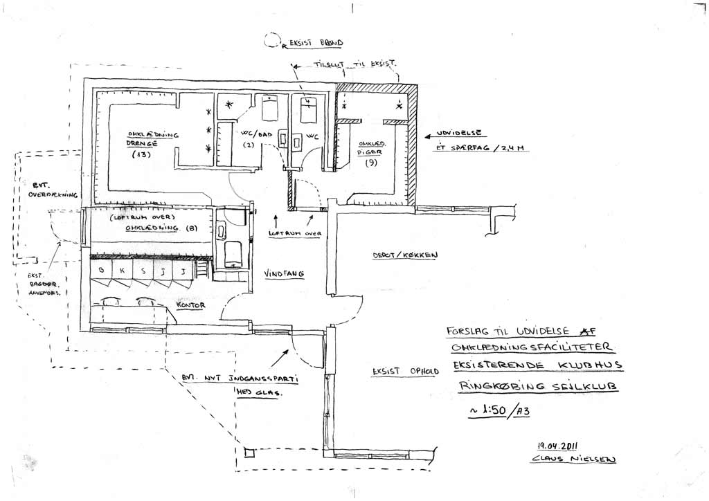
Tegning nyt klubhus
Af Flemming Merrild
28/05/2019
Spørg løs
Skriv dit spørgsmål nedenfor, så svarer vi dig hurtigst muligt.
Efterlad følgende felt tom
Tjekker
Efterlad følgende felt tom
Tjekker
Navn *
Email *
Besked *
Dette valg vil desværre ikke kunne vises tilfredsstillende. Browseren understøtter ikke integrerede rammer(IFRAMES)
Vejr